Cabins
Mulberry Farm
Where: Madison County, North CarolinaWith: Cutler Anderson Architects




Prefabrication process and installation photos:



Exploded Axonometric of Cabin Construction:


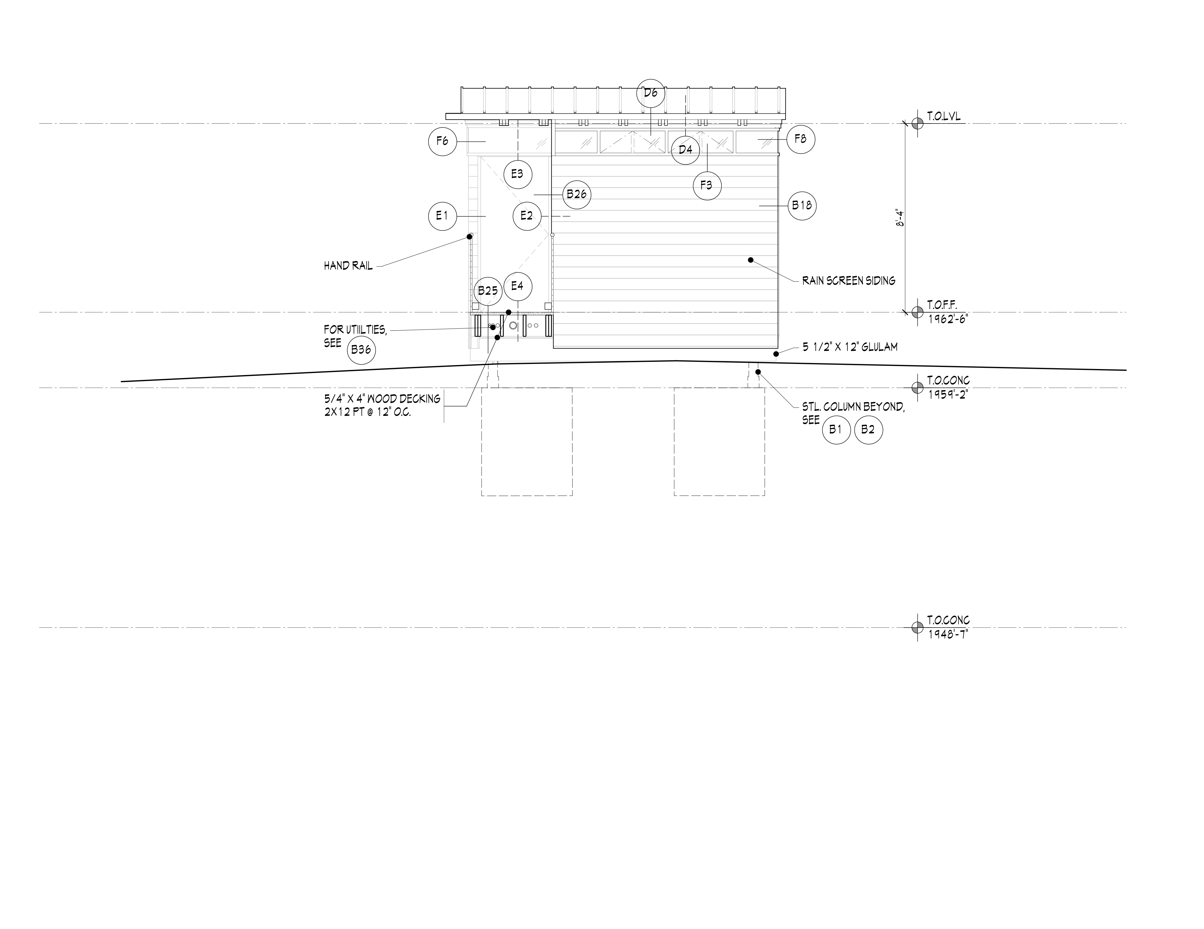
Drawings from Construction Set: Plans, Side Elevations






